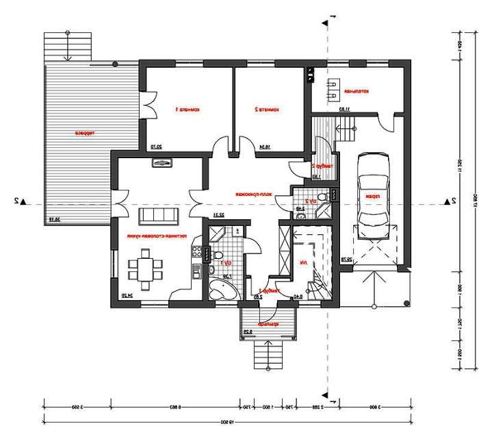
| Артикул | 4M1859 |
| Количество этажей: | 2 |
| Общая площадь: | 376.60 м2 |
| Количество спален: | 6 |
| Количество санузлов: | 4 |
| Гараж: | Гараж на одно авто |
| Минимальный размер участка(длина): | 22.00 м |
| Минимальный размер участка(ширина): | 24.00 м |
Материалы: | |
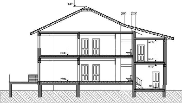
| Стены: | каменные |
| Перекрытие: | монолитное перекрытие |
| Кровля: | металлочерепица, керамическая черепица, битумная |
| Фундамент: | монолитная лента |
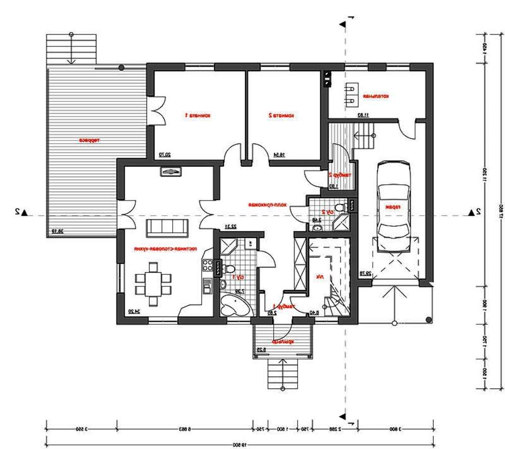
| Артикул | 4M1859 |
| Количество этажей: | 2 |
| Общая площадь: | 376.60 м2 |
| Количество спален: | 6 |
| Количество санузлов: | 4 |
| Гараж: | Гараж на одно авто |
| Минимальный размер участка(длина): | 22.00 м |
| Минимальный размер участка(ширина): | 24.00 м |
Материалы: | |
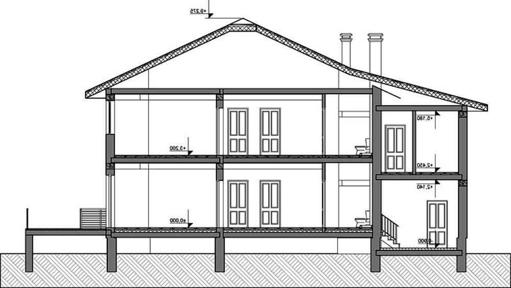
| Стены: | каменные |
| Перекрытие: | монолитное перекрытие |
| Кровля: | металлочерепица, керамическая черепица, битумная |
| Фундамент: | монолитная лента |
Приобретая проект дома в компании Dom4M, Вы получаете комплект чертежей - 2 экземпляра, необходимый для проведения строительных работ и беспрепятственного получения разрешения на строительство.
Проект содержит три раздела – Архитектурный, Конструктивный и Инженерный (Водоснабжение, Отопление, Вентиляция, Канализация, Электроснабжение) + Пояснительная записка
1. Архитектурный раздел:
2. Конструктивный раздел:
3. Инженерный раздел:
Водоснабжение и канализация
Отопление, вентиляция
Электротехнические решения:
Проект является типовым и не учитывает конкретных условий строительства
Срок изготовления проекта дома составляет от 3 до 30 рабочих дней.
Объем проектной документации – от 50 до 100 страниц А4 и А3, в зависимости от сложности проекта
Наша команда Архитекторов, Конструкторов и Инженеров – всегда готовы воплотить Вашу мечту в реальность!
Мы можем вносить любые изменения в проект по Вашему пожеланию и адаптировать его с учетом конкретных геолого-топографических и климатических условий, за дополнительную плату.
Всегда рады Вам помочь!
