| Артикул | 4M2320 |
| Количество этажей: | 2 |
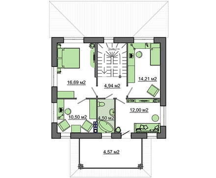
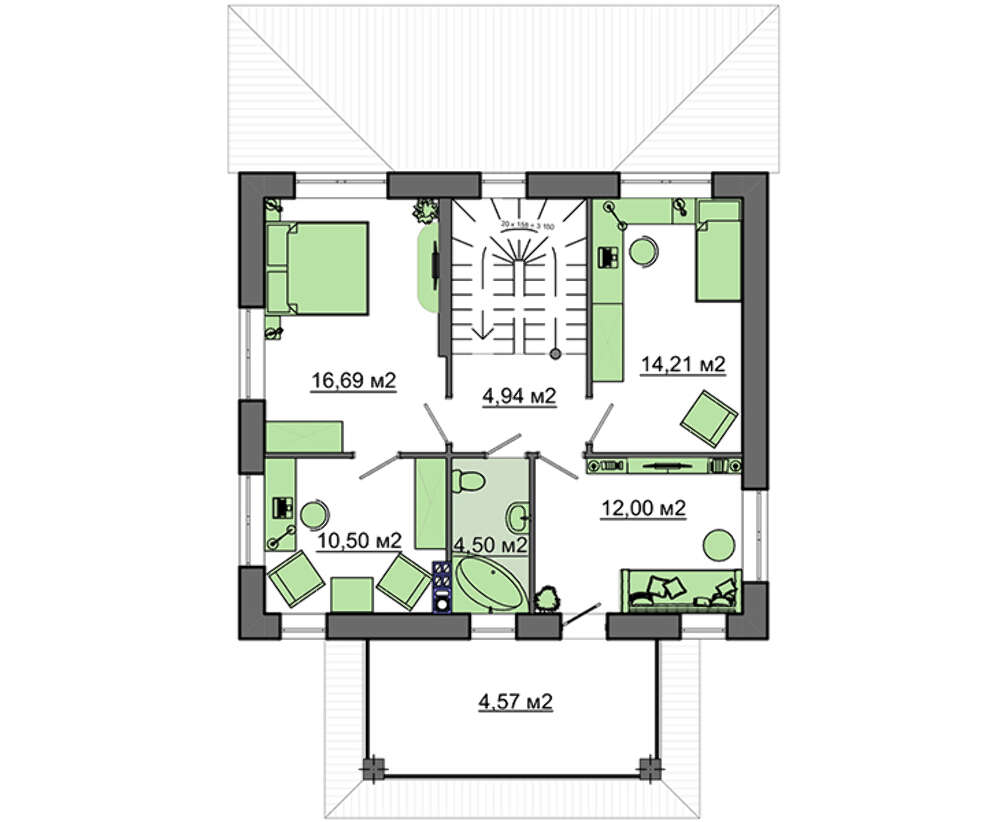
| Общая площадь: | 143.00 м2 |
| Жилая площадь: | 80.95 м2 |
| Высота дома: | 8.25 м |
| Высота потолка: | 2.80 м |
| Угол наклона кровли: | 20 ° |
| Площадь крыши: | 148.50 м2 |
| Количество спален: | 4 |
| Количество санузлов: | 2 |
| Минимальный размер участка(длина): | 18.00 м |
| Минимальный размер участка(ширина): | 20.00 м |
| Площадь застройки: | 139.76 м2 |
Материалы: | |
| Стены: | газобетонные блоки |
| Перекрытие: | монолитное перекрытие |
| Кровля: | металлочерепица, керамическая черепица, битумная |
| Фундамент: | монолитная лента |
Дополнительные сведения: | Проект студии современной архитектуры А.Черноокой. |
| Артикул | 4M2320 |
| Количество этажей: | 2 |
| Общая площадь: | 143.00 м2 |
| Жилая площадь: | 80.95 м2 |
| Высота дома: | 8.25 м |
| Высота потолка: | 2.80 м |
| Угол наклона кровли: | 20 ° |
| Площадь крыши: | 148.50 м2 |
| Количество спален: | 4 |
| Количество санузлов: | 2 |
| Минимальный размер участка(длина): | 18.00 м |
| Минимальный размер участка(ширина): | 20.00 м |
| Площадь застройки: | 139.76 м2 |
Материалы: | |
| Стены: | газобетонные блоки |
| Перекрытие: | монолитное перекрытие |
| Кровля: | металлочерепица, керамическая черепица, битумная |
| Фундамент: | монолитная лента |
Дополнительные сведения: | Проект студии современной архитектуры А.Черноокой. |

Гудок поезда раздался в момент, когда Альберт стоял посреди перрона с черным кейсом в руках. Он уехал на Юг, чтобы построить здесь заново свою судьбу. Он верил, что капризная барышня помогает только тем, кто готов сам приложить усилия.
- Где ваш багаж? - спрашивали его сначала в самолете, потом в поезде.
- Только кейс, - отвечал Альберт, указывая на свою сокровищницу, в которой хранился проект двухэтажного дома.
Именно его Альберт выбрал перед тем, как улететь за океан. Он полагал, что новая жизнь без нового дома невозможна. Крепкий фундамент, на котором можно чувствовать себя уверенным во всем, - вот что он думал о строительстве дома.
Время – явление скоротечное, и вот в его руках приятно холодила связка ключей от дома. На первом этаже он сделал кабинет с окном, открывающимся на террасу. Аромат хвои вливался сквозь открытые рамы, и теперь хозяин мог работать буквально на свежем воздухе.
Остальные комнаты постепенно наполнялись новой мебелью. Дом оправдал надежды, возложенные на него: удобный, красивый и современный. И хотя Альберт не верил в приметы, но для себя сделал вывод: новый дом – это магия, которая способна изменить жизнь лучше любой гадалки.
Гудок поезда раздался в момент, когда Альберт стоял посреди перрона с черным кейсом в руках. Он уехал на Юг, чтобы построить здесь заново свою судьбу. Он верил, что капризная барышня помогает только тем, кто готов сам приложить усилия.
- Где ваш багаж? - спрашивали его сначала в самолете, потом в поезде.
- Только кейс, - отвечал Альберт, указывая на свою сокровищницу, в которой хранился проект двухэтажного дома.
Именно его Альберт выбрал перед тем, как улететь за океан. Он полагал, что новая жизнь без нового дома невозможна. Крепкий фундамент, на котором можно чувствовать себя уверенным во всем, - вот что он думал о строительстве дома.
Время – явление скоротечное, и вот в его руках приятно холодила связка ключей от дома. На первом этаже он сделал кабинет с окном, открывающимся на террасу. Аромат хвои вливался сквозь открытые рамы, и теперь хозяин мог работать буквально на свежем воздухе.
Остальные комнаты постепенно наполнялись новой мебелью. Дом оправдал надежды, возложенные на него: удобный, красивый и современный. И хотя Альберт не верил в приметы, но для себя сделал вывод: новый дом – это магия, которая способна изменить жизнь лучше любой гадалки.