| Артикул | 4M2322 |
| Количество этажей: | 1 |
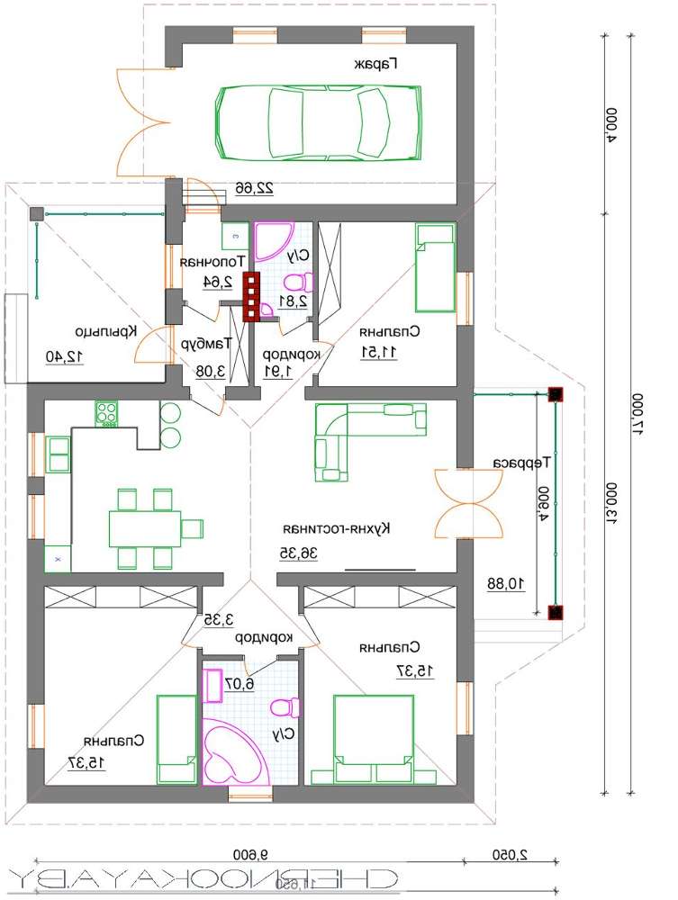
| Общая площадь: | 128.00 м2 |
| Жилая площадь: | 78.00 м2 |
| Высота дома: | 6.10 м |
| Высота потолка: | 2.70 м |
| Угол наклона кровли: | 30 ° |
| Площадь крыши: | 250.00 м2 |
| Кубатура: | 350.00 м3 |
| Количество спален: | 3 |
| Количество санузлов: | 2 |
| Гараж: | Гараж на одно авто |
| Минимальный размер участка(длина): | 21.00 м |
| Минимальный размер участка(ширина): | 23.00 м |
| Площадь застройки: | 200 м2 |
Материалы: | |
| Стены: | газобетон, керамические блоки |
| Перекрытие: | по деревянным балкам |
| Кровля: | керамическая черепица, металлочерепица, цементно-песчаная черепица |
| Фундамент: | ленточный монолитно-сборной |
Дополнительные сведения: | Проект студии современной архитектуры А.Черноокой. |
| Артикул | 4M2322 |
| Количество этажей: | 1 |
| Общая площадь: | 128.00 м2 |
| Жилая площадь: | 78.00 м2 |
| Высота дома: | 6.10 м |
| Высота потолка: | 2.70 м |
| Угол наклона кровли: | 30 ° |
| Площадь крыши: | 250.00 м2 |
| Кубатура: | 350.00 м3 |
| Количество спален: | 3 |
| Количество санузлов: | 2 |
| Гараж: | Гараж на одно авто |
| Минимальный размер участка(длина): | 21.00 м |
| Минимальный размер участка(ширина): | 23.00 м |
| Площадь застройки: | 200 м2 |
Материалы: | |
| Стены: | газобетон, керамические блоки |
| Перекрытие: | по деревянным балкам |
| Кровля: | керамическая черепица, металлочерепица, цементно-песчаная черепица |
| Фундамент: | ленточный монолитно-сборной |
Дополнительные сведения: | Проект студии современной архитектуры А.Черноокой. |

Клацнув замком, архитектор закрыл свое бюро и уехал домой. Тишину перебил шорох: на толстую книгу выбрался Главный Грифель и сказал:
- Коллеги, посмотрите на этот нетронутый белый лист. Наш мэтр так и не начертил задуманный проект одноэтажного коттеджа. Но мы-то знаем его задумку, так что справимся сами, верно?
Постукивание карандашей по столу означало согласие. Они собрались возле листа и ждали дальнейших распоряжений.
- Итак, нам нужны три спальни, кухня-столовая, и встроенный гараж. Кажется, достаточный комплект для семейного дома.
Карандаши взялись за работу. Дружной командой они воссоздали мечту архитектора, которую он так долго обсуждал по телефону. Каждый уголок был продуман, так что когда работа над проектом завершилась карандаши не сомневались: это именно то, что нужно людям.
- По местам! - напомнил о рассвете Главный Грифель.
Все разбежались, оставив посреди стола уже не белеющий пустотой лист. Еще час – и дверь откроется, мэтр увидит проект.
Карандаши предвосхищали его удивление, когда мэтр поймет, что вот она, мечта: готовый проект коттеджа без компромиссов!
Клацнув замком, архитектор закрыл свое бюро и уехал домой. Тишину перебил шорох: на толстую книгу выбрался Главный Грифель и сказал:
- Коллеги, посмотрите на этот нетронутый белый лист. Наш мэтр так и не начертил задуманный проект одноэтажного коттеджа. Но мы-то знаем его задумку, так что справимся сами, верно?
Постукивание карандашей по столу означало согласие. Они собрались возле листа и ждали дальнейших распоряжений.
- Итак, нам нужны три спальни, кухня-столовая, и встроенный гараж. Кажется, достаточный комплект для семейного дома.
Карандаши взялись за работу. Дружной командой они воссоздали мечту архитектора, которую он так долго обсуждал по телефону. Каждый уголок был продуман, так что когда работа над проектом завершилась карандаши не сомневались: это именно то, что нужно людям.
- По местам! - напомнил о рассвете Главный Грифель.
Все разбежались, оставив посреди стола уже не белеющий пустотой лист. Еще час – и дверь откроется, мэтр увидит проект.
Карандаши предвосхищали его удивление, когда мэтр поймет, что вот она, мечта: готовый проект коттеджа без компромиссов!