| Артикул | 4M747 |
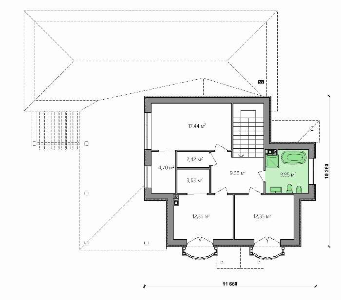
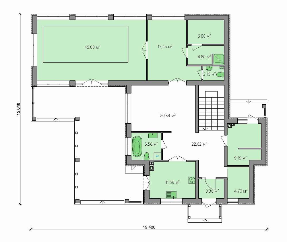
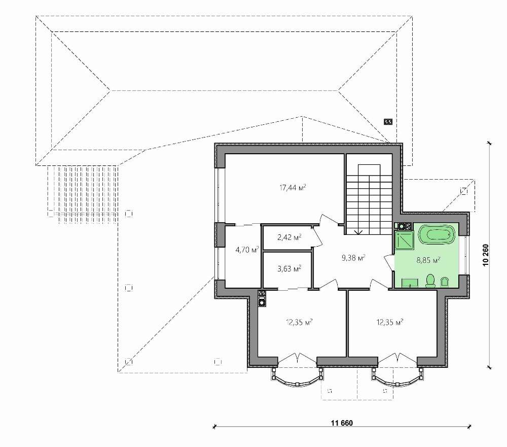
| Количество этажей: | 2 |
| Общая площадь: | 253.39 м2 |
| Высота дома: | 9.48 м |
| Высота потолка: | 3.00 м |
| Площадь крыши: | 392.96 м2 |
| Количество спален: | 3 |
| Количество санузлов: | 3 |
| Минимальный размер участка(длина): | 27.50 м |
| Минимальный размер участка(ширина): | 23.70 м |
Материалы: | |
| Стены: | газобетон, керамический блок |
| Перекрытие: | деревянное |
| Кровля: | битумная черепица |
| Фундамент: | монолитная лента |
| Артикул | 4M747 |
| Количество этажей: | 2 |
| Общая площадь: | 253.39 м2 |
| Высота дома: | 9.48 м |
| Высота потолка: | 3.00 м |
| Площадь крыши: | 392.96 м2 |
| Количество спален: | 3 |
| Количество санузлов: | 3 |
| Минимальный размер участка(длина): | 27.50 м |
| Минимальный размер участка(ширина): | 23.70 м |
Материалы: | |
| Стены: | газобетон, керамический блок |
| Перекрытие: | деревянное |
| Кровля: | битумная черепица |
| Фундамент: | монолитная лента |
Приобретая проект дома в компании Dom4M, Вы получаете комплект чертежей - 2 экземпляра, необходимый для проведения строительных работ и беспрепятственного получения разрешения на строительство.
Проект содержит три раздела – Архитектурный, Конструктивный и Инженерный (Водоснабжение, Отопление, Вентиляция, Канализация, Электроснабжение) + Пояснительная записка
1. Архитектурный раздел:
2. Конструктивный раздел:
3. Инженерный раздел:
Водоснабжение и канализация
Отопление, вентиляция
Электротехнические решения:
Проект является типовым и не учитывает конкретных условий строительства
Срок изготовления проекта дома составляет от 3 до 30 рабочих дней.
Объем проектной документации – от 50 до 100 страниц А4 и А3, в зависимости от сложности проекта
Наша команда Архитекторов, Конструкторов и Инженеров – всегда готовы воплотить Вашу мечту в реальность!
Мы можем вносить любые изменения в проект по Вашему пожеланию и адаптировать его с учетом конкретных геолого-топографических и климатических условий, за дополнительную плату.
Всегда рады Вам помочь!

У состоятельной фрау были две дочери и сын. Когда дети выросли, мудрая женщина собрала их и сказала:
- Мои любимые, дорогие, пришла пора искать ваш путь на большой дороге жизни. Ступайте, а через год я жду вас здесь, и вы поделитесь, как распорядились ценным временем.
Дети разъехались по миру, а через год, как договаривались, встретились снова. Одна дочь сказала:
- Мама, я встретила мужчину своей жизни, и он попросил моей руки и сердца. Я согласилась, и мы ждем твоего одобрения.
Другая дочь ответила:
- А я решила посвятить себя искусству: объездив самые известные художественные музеи мира, я хочу выучиться на искусствоведа.
А сын молвил:
- Мама, среди твоих детей я – единственный мужчина, поэтому решил сперва построить большой красивый дом, а затем строить карьеру и всю жизнь. Вот, я нашел подходящий проект: это привлекательный особняк, достойный статуса нашей семьи.
Довольная фрау посмотрела на детей и сказала:
- Как же я горжусь вами, мое материнское сердце переполнено радостью! Сын, этот дом без сомнений прекрасен и он достоин быть построенным, иди же, действуй!
Так младший сын построил славный особняк, принесший ему успех в делах, да и вообще во всем, за что он брался. И жил он поживал, наживал титулов, уважения друзей и антикварные вещи, которыми обожал украшать свой любимый особняк!
У состоятельной фрау были две дочери и сын. Когда дети выросли, мудрая женщина собрала их и сказала:
- Мои любимые, дорогие, пришла пора искать ваш путь на большой дороге жизни. Ступайте, а через год я жду вас здесь, и вы поделитесь, как распорядились ценным временем.
Дети разъехались по миру, а через год, как договаривались, встретились снова. Одна дочь сказала:
- Мама, я встретила мужчину своей жизни, и он попросил моей руки и сердца. Я согласилась, и мы ждем твоего одобрения.
Другая дочь ответила:
- А я решила посвятить себя искусству: объездив самые известные художественные музеи мира, я хочу выучиться на искусствоведа.
А сын молвил:
- Мама, среди твоих детей я – единственный мужчина, поэтому решил сперва построить большой красивый дом, а затем строить карьеру и всю жизнь. Вот, я нашел подходящий проект: это привлекательный особняк, достойный статуса нашей семьи.
Довольная фрау посмотрела на детей и сказала:
- Как же я горжусь вами, мое материнское сердце переполнено радостью! Сын, этот дом без сомнений прекрасен и он достоин быть построенным, иди же, действуй!
Так младший сын построил славный особняк, принесший ему успех в делах, да и вообще во всем, за что он брался. И жил он поживал, наживал титулов, уважения друзей и антикварные вещи, которыми обожал украшать свой любимый особняк!