С правилами ознакомлен(а) Авторизация
Авторизация нужна для сохраниения Вашего "Избранного".
Войти через:
  • Первый этаж:
    Первый этаж::
    Первый этаж::
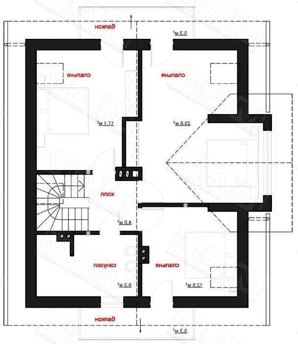
    Второй этаж:
    Второй этаж::
    Второй этаж::
    Цокольный этаж:
    Цокольный этаж::
    Цокольный этаж::
  • 4M863 Красивый проект компактного дома с мансардой и цокольным этажом

    Артикул4M863
    Количество этажей:3
    Общая площадь:160.00 м2
    Количество спален:4
    Количество санузлов:2
    Минимальный размер участка(длина):17.00 м
    Минимальный размер участка(ширина):16.00 м
    Материалы:
    Стены:Газобетонные блоки, кирпич
    Перекрытие:монолитное перекрытие
    Кровля:керамическая черепица
    Фундамент:монолитная лента
Планы этажей
  • Первый этаж:
    Первый этаж:
    Первый этаж:
    Второй этаж:
    Второй этаж:
    Второй этаж:
    Цокольный этаж:
    Цокольный этаж:
    Цокольный этаж:
Фасады и расположение на участке
Состав проекта

Покупая проект дома в компании Dom4M, Вы получаете комплект чертежей, необходимый для проведения строительных работ и беспрепятственного получения разрешения на строительство.

В основном составе, наш проект содержит:  Пояснительную записку и два больших раздела – Архитектурный и Конструктивный.

1. В состав Архитектурного раздела входят:

  • Поэтажные планы
  • Разрезы
  • План кровли
  • Фасады с ведомостью внешних отделок
  • Перспективные изображения
  • Цветовые решения фасадов
  • Архитектурный расчет лестниц
  • Дымовые (вентиляционные) каналы с по этажными сечениями
  • Элементы проемов – спецификация

2. В состав Конструктивного раздела входят:

  • Общие данные по проекту
  • Схемы расположения осей
  • Расчеты фундаментов
  • Элементы каркаса – кладочный план
  • Схема расположения перекрытий
  • Элементы кровли – перспективное изображениестропильной системы
  • Решение по облицовке фасада
  • Чертежи отдельных элементов, узлы крепления, сечения
  • Ведомости расхода стали и бетона

3.  Инженерный раздел (приобретается по желанию):

  • Водоснабжение и канализация
  • Отопление, вентиляция
  • Электротехнические решения

Срок изготовления проекта дома составляет от 7 до 35 рабочих дней.

Объем проектной документации – от  50 до 90 страниц А4 и А3, в зависимости от сложности проекта

  • Проекты являются типовыми и не учитывают конкретных условий строительства.

Наша команда Архитекторов, Конструкторов и Инженеров – всегда готовы воплотить Вашу мечту в реальность!

Мы можем вносить любые изменения в проект по Вашему пожеланию и адаптировать его с учетом конкретных геолого-топографических и климатических условий, за дополнительную плату.

  • Получить профессиональную консультацию у наших специалистов, Вы можете любым способом связи: закажите обратный звонок, по skype, e-mail, телефон - наши контакты.

Всегда рады Вам помочь!

Прочитать полный текст
Акции

       Вы купили проект, и были бы не против вернуть часть денег затраченных на покупку? Или, может быть, таким образом, дать возможность подзаработать своим детям, племянникам, крестникам? :) Начните вести в комментариях к проекту свой блог "ДНЕВНИК СТРОЙКИ" описывайте и размещайте фотографии от первого дня строительства и до заселения! Рассказывайте обо всём, что может быть интересно другим посетителям нашего сайта! Мы гарантируем, что автор КАЖДОГО полного блога получит 10% от суммы, затраченной на приобретёние проекта.

 

        Если Вы строитесь по нашему проекту и Вам интересна эта акция - свяжитесь с нами, чтобы узнать подробнее! С желающими мы готовы заключить юридический договор о возврате средств!

        Вкладка "комментарии" в каждом проекте и в каждом разделе: пишите Ваши мнения и оценки, размещайте фото и описания стройки!

 

Дополнительные пакеты
Фасады

Красивый проект компактного дома с мансардой и цокольным этажом 4M863

Комментарии
Чтобы оставить комментарий, Вы должны либо заполнить поля ниже, либо авторизироваться на сайте.
Загрузить фото, до 5 штук
Ваша оценка:
Подобные
ЗАКАЗАТЬ
Категории
© 2010-2021 Dom4M. Все права защищены
This site is protected by reCAPTCHA and the Google Privacy Policy and Terms of Service apply