С правилами ознакомлен(а) Авторизация
Авторизация нужна для сохраниения Вашего "Избранного".
Войти через:
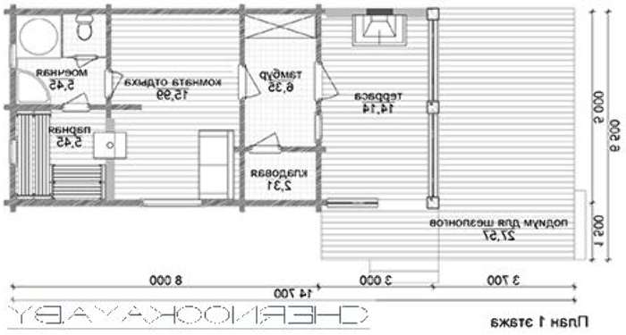
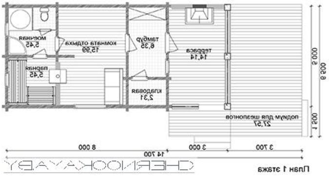
  • Первый этаж:
    Первый этаж::
    Первый этаж::
  • 4M2314 2314

    Артикул4M2314
    Количество этажей:1
    Общая площадь:48.00 м2
    Жилая площадь:16.00 м2
    Высота дома:4.00 м
    Высота потолка:2.70 м
    Угол наклона кровли:20 °
    Площадь крыши:110.00 м2
    Количество санузлов:1
    Минимальный размер участка(длина):16.00 м
    Минимальный размер участка(ширина):21.00 м
    Площадь застройки:105 м2
    Материалы:
    Стены:Профилированный брус 200 мм
    Перекрытие:по деревянным балкам
    Кровля:керамическая черепица, металлочерепица, цементно-песчаная черепица
    Фундамент:ленточный монолитно-сборной
Планы этажей
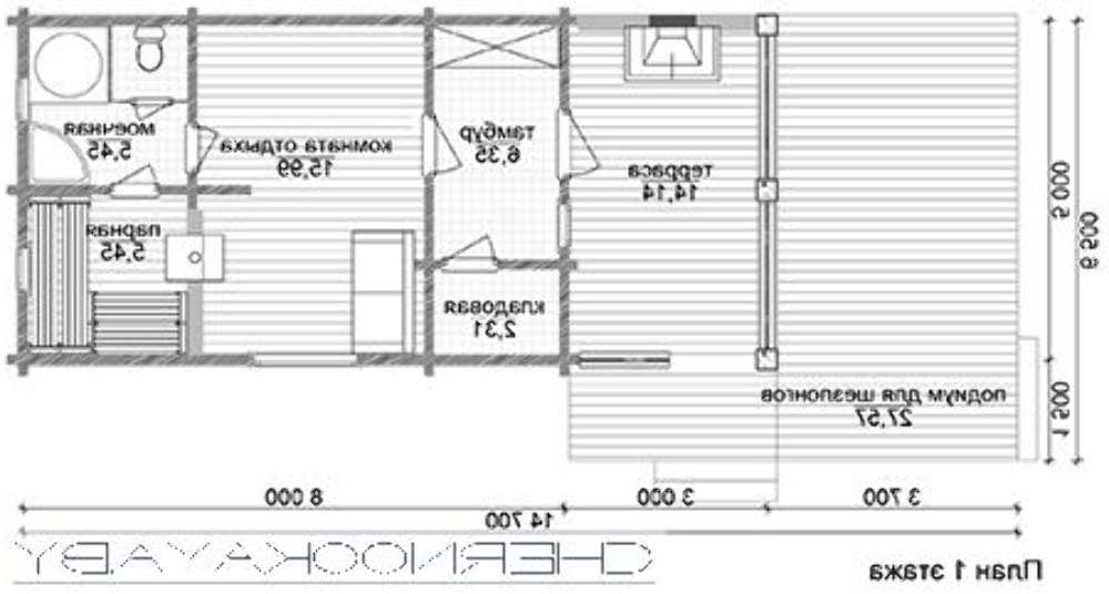
  • Первый этаж:
    Первый этаж:
    Первый этаж:
Фасады и расположение на участке
Состав проекта
Акции

       Вы купили проект, и были бы не против вернуть часть денег затраченных на покупку? Или, может быть, таким образом, дать возможность подзаработать своим детям, племянникам, крестникам? :) Начните вести в комментариях к проекту свой блог "ДНЕВНИК СТРОЙКИ" описывайте и размещайте фотографии от первого дня строительства и до заселения! Рассказывайте обо всём, что может быть интересно другим посетителям нашего сайта! Мы гарантируем, что автор КАЖДОГО полного блога получит 10% от суммы, затраченной на приобретёние проекта.

 

        Если Вы строитесь по нашему проекту и Вам интересна эта акция - свяжитесь с нами, чтобы узнать подробнее! С желающими мы готовы заключить юридический договор о возврате средств!

        Вкладка "комментарии" в каждом проекте и в каждом разделе: пишите Ваши мнения и оценки, размещайте фото и описания стройки!

 

Дополнительные пакеты

2314 4M2314

Комментарии
Чтобы оставить комментарий, Вы должны либо заполнить поля ниже, либо авторизироваться на сайте.
Загрузить фото, до 5 штук
Ваша оценка:
Подобные
ЗАКАЗАТЬ
Категории
© 2010-2021 Dom4M. Все права защищены
This site is protected by reCAPTCHA and the Google Privacy Policy and Terms of Service apply