| Артикул | 4M2305 |
| Количество этажей: | 2 |
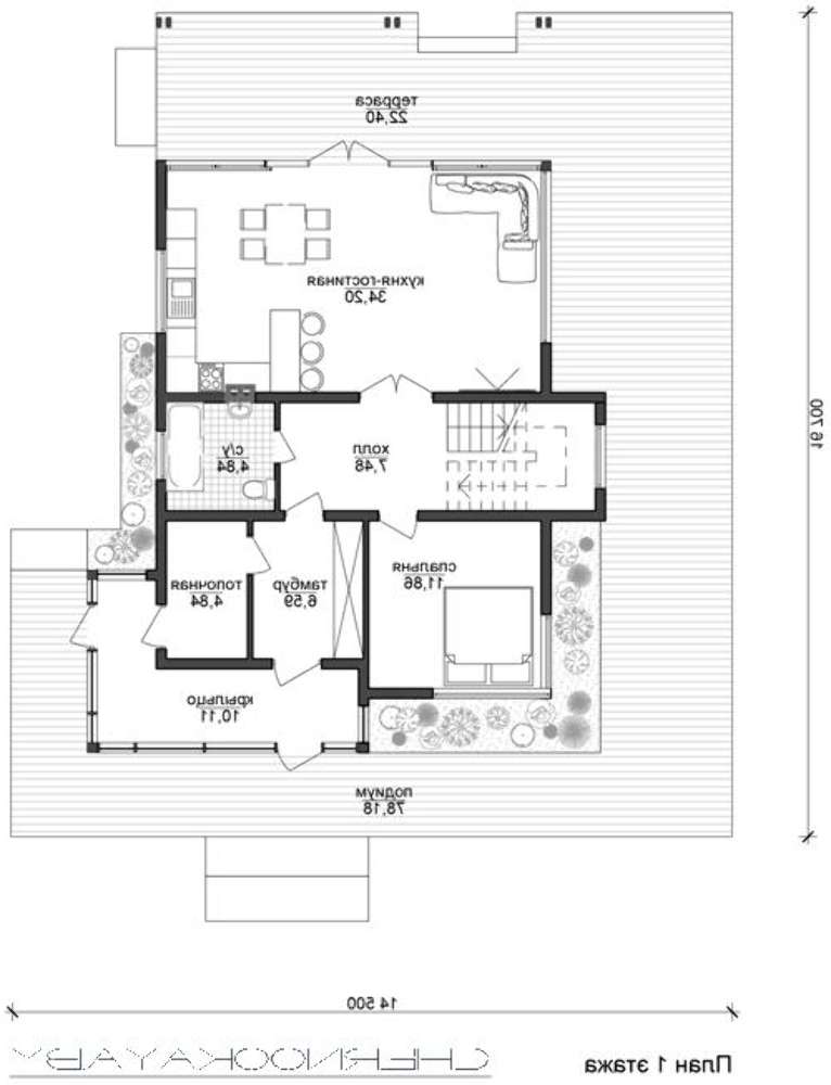
| Общая площадь: | 140.00 м2 |
| Жилая площадь: | 70.00 м2 |
| Высота дома: | 7.50 м |
| Высота потолка: | 2.70 м |
| Угол наклона кровли: | 35 ° |
| Площадь крыши: | 130.00 м2 |
| Кубатура: | 380.00 м3 |
| Количество спален: | 2 |
| Количество санузлов: | 2 |
| Минимальный размер участка(длина): | 26.00 м |
| Минимальный размер участка(ширина): | 21.00 м |
| Площадь застройки: | 240 м2 |
Материалы: | |
| Стены: | газобетон, керамические блоки |
| Перекрытие: | монолитное перекрытие |
| Кровля: | керамическая черепица, металлочерепица, цементно-песчаная черепица |
| Фундамент: | ленточный монолитно-сборной |
Дополнительные сведения: | Проект студии современной архитектуры А.Черноокой. |
| Артикул | 4M2305 |
| Количество этажей: | 2 |
| Общая площадь: | 140.00 м2 |
| Жилая площадь: | 70.00 м2 |
| Высота дома: | 7.50 м |
| Высота потолка: | 2.70 м |
| Угол наклона кровли: | 35 ° |
| Площадь крыши: | 130.00 м2 |
| Кубатура: | 380.00 м3 |
| Количество спален: | 2 |
| Количество санузлов: | 2 |
| Минимальный размер участка(длина): | 26.00 м |
| Минимальный размер участка(ширина): | 21.00 м |
| Площадь застройки: | 240 м2 |
Материалы: | |
| Стены: | газобетон, керамические блоки |
| Перекрытие: | монолитное перекрытие |
| Кровля: | керамическая черепица, металлочерепица, цементно-песчаная черепица |
| Фундамент: | ленточный монолитно-сборной |
Дополнительные сведения: | Проект студии современной архитектуры А.Черноокой. |

Жила-была принцесса, и звали ее Ледяное Сердце. Она жила на скалистой горе в огромной сугробе, заведуя льдами и метелями. Когда наступала весна и вместе с ней приходило Тепло, оно всегда обходило гору, где жила принцесса. Но дальше так продолжаться не могло, потому Тепло твердо решило:
- Не бывать этому! Я растоплю сугроб, и пусть будет то, что будет!
Тепло собрало свою магическую силу, навело лучики на сугроб, и снег начал таять. А под ним оказался красивый зимний домик, напоминающий ледяной дворец.
И когда Ледяное Сердце вернулась и вместо сугроба обнаружила красивый дом, она расплакалась, как маленькая девочка на руках у любящей мамы. Дом так поразил ее в сердце своей красотой, что оно перестало быть Ледяным. Принцесса смотрела на зимний домик и не могла поверить в свершившееся чудо.
С тех пор в горы приходила весна. К дому принцессы она шла прежде всего, а там ее ждало Тепло.
- Я же говорило, все случится как надо. Она добрая девушка, ей просто надо было немного помочь раскрыть доброту. И я подарило ей дом, растопивший лед, который гораздо тверже, чем тот, покрывший гору.
С тех пор принцесса и Тепло стали лучшими друзьями, а дом – жемчужиной нетронутой природы.
Жила-была принцесса, и звали ее Ледяное Сердце. Она жила на скалистой горе в огромной сугробе, заведуя льдами и метелями. Когда наступала весна и вместе с ней приходило Тепло, оно всегда обходило гору, где жила принцесса. Но дальше так продолжаться не могло, потому Тепло твердо решило:
- Не бывать этому! Я растоплю сугроб, и пусть будет то, что будет!
Тепло собрало свою магическую силу, навело лучики на сугроб, и снег начал таять. А под ним оказался красивый зимний домик, напоминающий ледяной дворец.
И когда Ледяное Сердце вернулась и вместо сугроба обнаружила красивый дом, она расплакалась, как маленькая девочка на руках у любящей мамы. Дом так поразил ее в сердце своей красотой, что оно перестало быть Ледяным. Принцесса смотрела на зимний домик и не могла поверить в свершившееся чудо.
С тех пор в горы приходила весна. К дому принцессы она шла прежде всего, а там ее ждало Тепло.
- Я же говорило, все случится как надо. Она добрая девушка, ей просто надо было немного помочь раскрыть доброту. И я подарило ей дом, растопивший лед, который гораздо тверже, чем тот, покрывший гору.
С тех пор принцесса и Тепло стали лучшими друзьями, а дом – жемчужиной нетронутой природы.